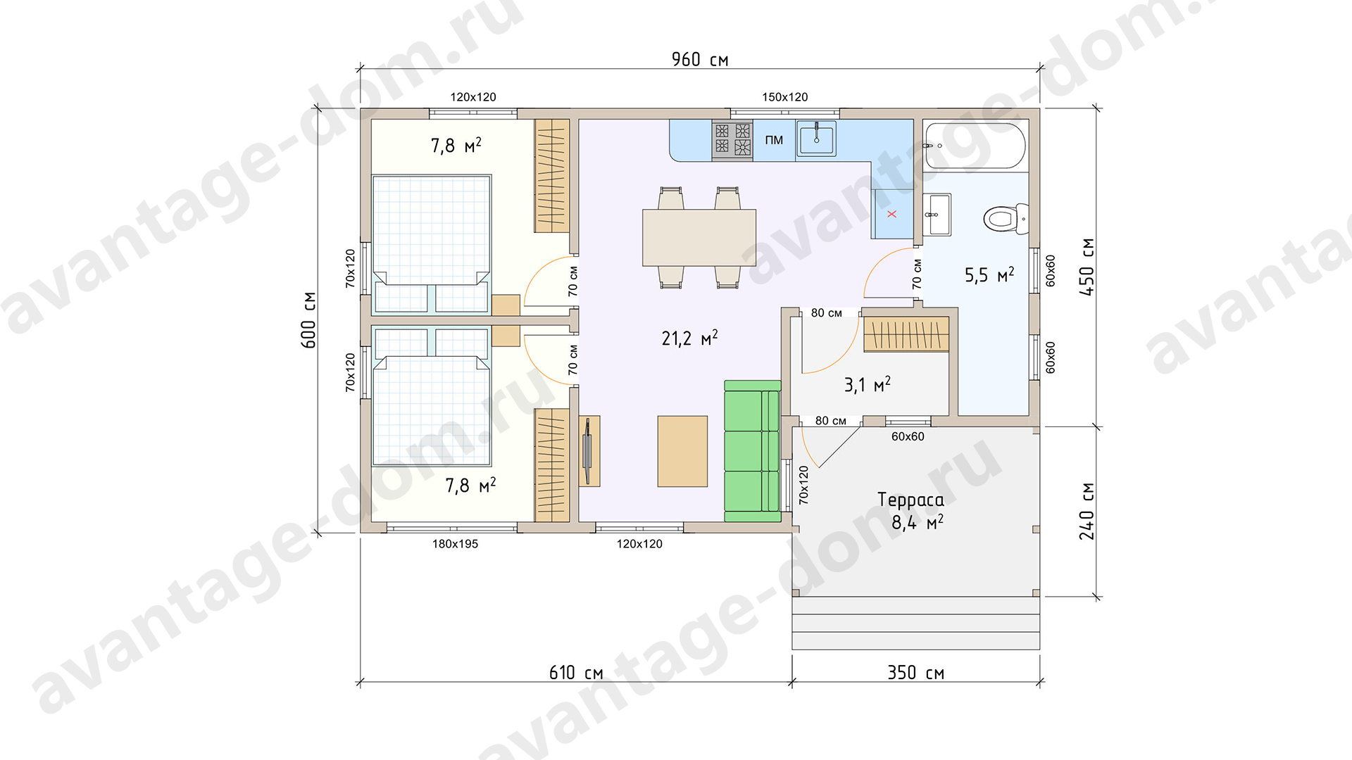
Комплектации и цены
БАЗОВАЯ
Цена:3 630 000 3 157 000 руб.
Фундамент
На винтовых сваях - 28 шт. Диаметр сваи - 89 мм. Верхняя обвязка свай из бруса 100:150мм. Брус обработан трудновымываемым антисептиком.
Основание
Брус 100:150 обработанный антисептиком
Отделка
Внутри- вагонка- сорт «В», «АВ» (прибивается на оцинкованные гвозди, по два гвоздя на ширину вагонки).
Снаружи – имитация бруса - сорт «А», «АВ» (прибивается на оцинкованные гвозди, по два гвоздя на ширину имитации) + цветной профлист. Вентилируемый фасад.
Монтаж плинтуса - по полу, потолку и углам комнат.
Высота потолка в чистоте 2.45м, потолок подшит вагонкой .
Черновой пол
ОСБ-9мм
Чистовой пол
Шпунтованный пол категории «В» -толщиной 28 мм. Прибивается на лаги через контррейку для вент. Зазора
Пол на веранде- сухая, строганная доска 28Х135мм
Утепление
Пол и потолок и внешние стены - 150мм. Внутренние перегородки - 100мм. Утеплитель плитный. С двух сторон утеплителя пароизоляционные мембраны.
Окна
Пластиковые, с поворото-откидными створками. Тройное остекление. Все окна с энергосберегающим стеклопакетом. Панорамные окна- 70-й профиль, обычные окна-60-й профиль.
Двери
Входная дверь - металлическая Российского производства. Внутренние - ламинированные с ручками защелками.
Кровля
Высота фронтона ~1,5м . Сборка крыши на месте. Кровля - металлочерепица.
Входные ступени не входят в стоимость проекта.
Цена:
Фундамент
На винтовых сваях - 28 шт. Диаметр сваи - 89 мм. Верхняя обвязка свай из бруса 100:150мм. Брус обработан трудновымываемым антисептиком.
Основание
Брус 100:150 обработанный антисептиком
Отделка
Внутри- вагонка- сорт «В», «АВ» (прибивается на оцинкованные гвозди, по два гвоздя на ширину вагонки).
Снаружи – имитация бруса - сорт «А», «АВ» (прибивается на оцинкованные гвозди, по два гвоздя на ширину имитации) + цветной профлист. Вентилируемый фасад.
Монтаж плинтуса - по полу, потолку и углам комнат.
Высота потолка в чистоте 2.45м, потолок подшит вагонкой .
Черновой пол
ОСБ-9мм
Чистовой пол
Шпунтованный пол категории «В» -толщиной 28 мм. Прибивается на лаги через контррейку для вент. Зазора
Пол на веранде- сухая, строганная доска 28Х135мм
Утепление
Пол и потолок и внешние стены - 150мм. Внутренние перегородки - 100мм. Утеплитель плитный. С двух сторон утеплителя пароизоляционные мембраны.
Окна
Пластиковые, с поворото-откидными створками. Тройное остекление. Все окна с энергосберегающим стеклопакетом. Панорамные окна- 70-й профиль, обычные окна-60-й профиль.
Двери
Входная дверь - металлическая Российского производства. Внутренние - ламинированные с ручками защелками.
Кровля
Высота фронтона ~1,5м . Сборка крыши на месте. Кровля - металлочерепица.
Входные ступени не входят в стоимость проекта.